Проект UNA-115
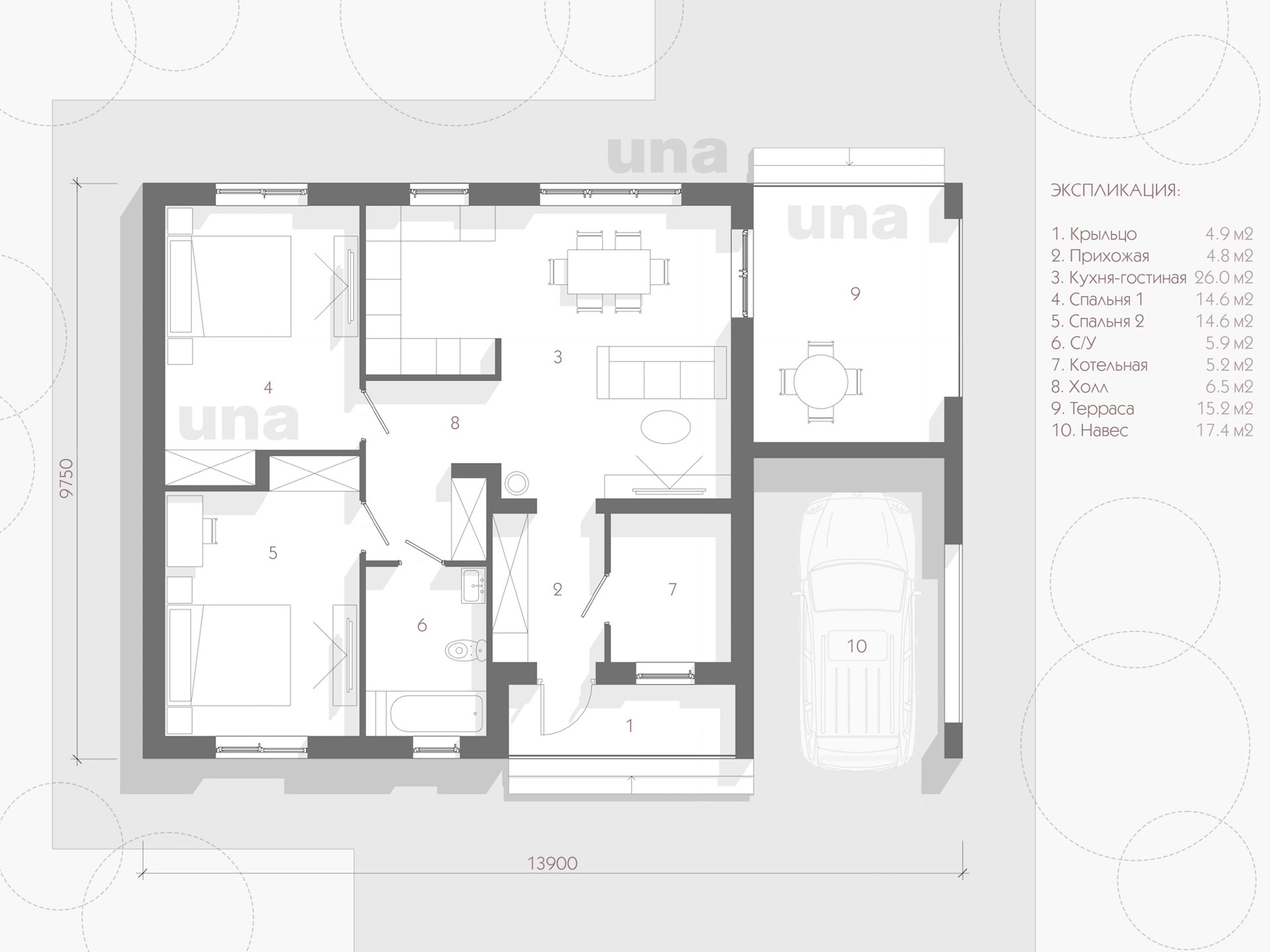
Это трёхкомнатная квартира со своим загородным участком. Красивый и эргономичный дом, в котором умещаются две большие спальни, просторная кухня – гостиная, удобный санузел, терраса и крытое парковочное место. Общая площадь - всего 115 квадратных метров.
общая площадь115 м²
габариты13.9x9.8
материалГазобетон
План этажа
План 1-го этажа






