Проект UNA-130
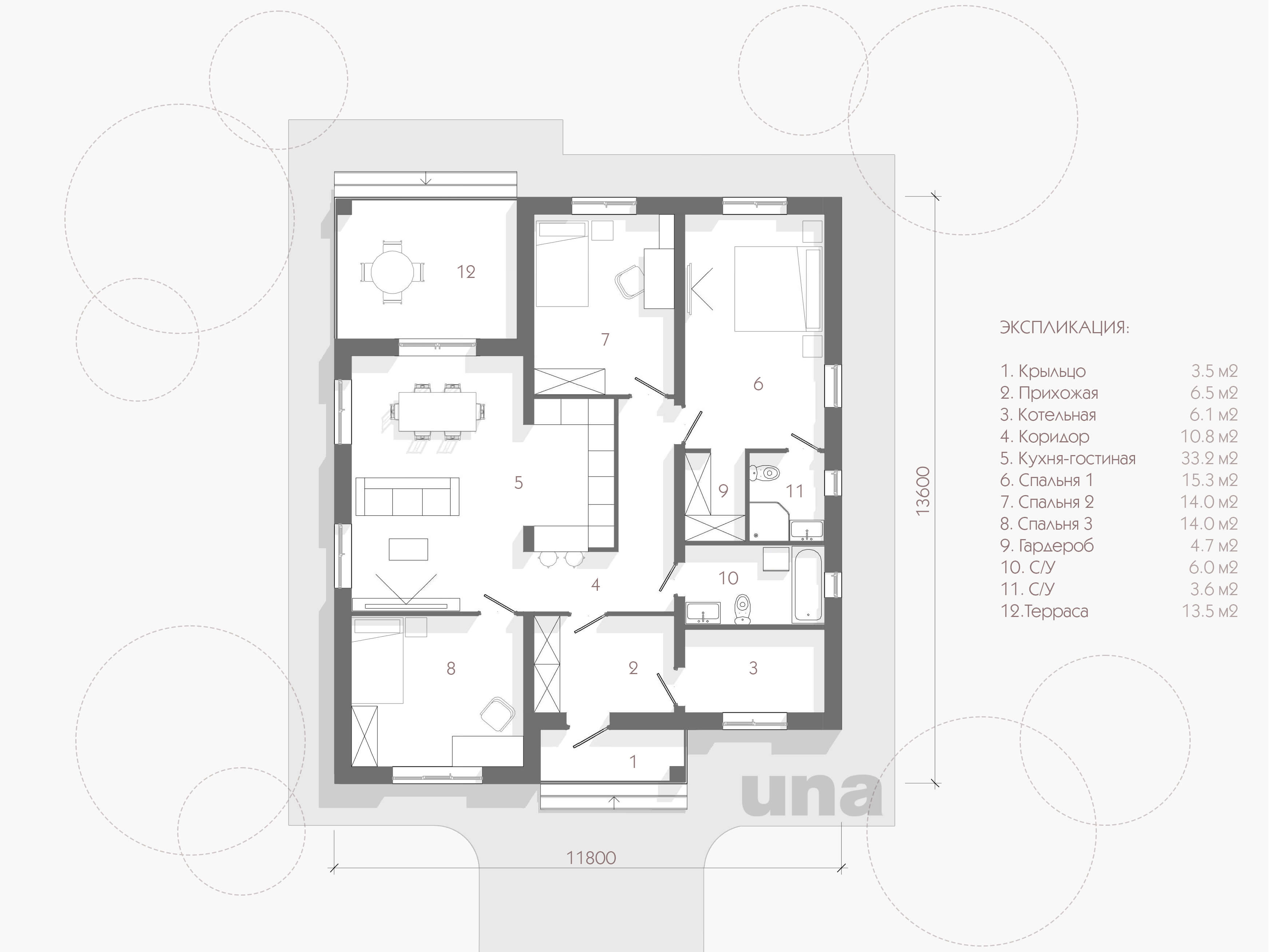
Популярный типовой проект, который стал основой для строительства двух коттеджных посёлков. Он выделяется на фоне других похожих проектов благодаря наличию мастер-спальни со своими гардеробом и санузлом. Также в доме присутствуют кухня - гостиная с необычной планировкой, две детские спальни, просторный санузел и крытая терраса.
общая площадь131 м²
габариты11.8x13.6
материалГазобетон
План этажа
План 1-го этажа







